公司动态
点击下载:不锈钢水箱图集 12S101 PDF格式

12S101不锈钢水箱图集(选用简图)

12S101不锈钢水箱图集(选用表1)

12S101不锈钢水箱图集(选用表)

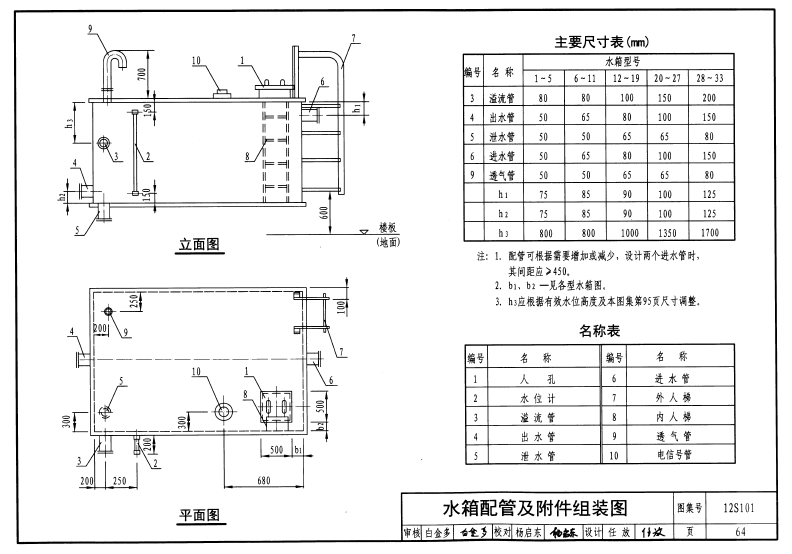
12S101不锈钢水箱图集(组装图)

不锈钢水箱图集 12S101 (外形图):

不锈钢水箱图集 12S101 (选用表一):

不锈钢水箱图集 12S101 (标准板):

不锈钢水箱图集 12S101 (基础图):

不锈钢水箱图集 12S101 (选用表二):

不锈钢水箱内人梯图集:

不锈钢水箱外人梯图集:

不锈钢水箱人孔图集:

不锈钢水箱配管接头安装图集:

不锈钢水箱溢流管透气管安装图集:

不锈钢水箱玻璃管液位计安装图集:

不锈钢水箱浮球阀安装图集:


微信服务号
鄂公网安备 42011202000782号