欢迎来到舜德不锈钢有限公司官方网站!
服务热线:027-83893889

乐竞竞技
微信服务号微信服务号

公司动态
当前位置:首页 > 新闻资讯 > 公司动态

装配式不锈钢水箱图集
来源:本站   点击:6285   时间:2014-07-16
   

 

点击下载不锈钢水箱图集 12S101   PDF格式

 

 

装配式不锈钢水箱图集:

 

 

装配式不锈钢水箱图集选用表一:

 

装配式不锈钢水箱图集选用表二:

 

 

装配式不锈钢水箱图集标准板:

 
 
 
 

装配式不锈钢水箱图集基础图:

 

 

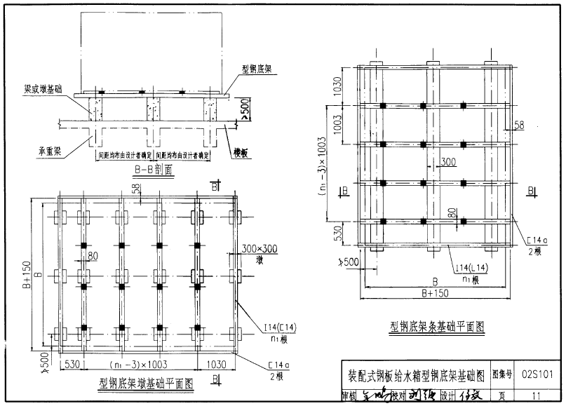
装配式不锈钢水箱图集底座型钢基础图:

 

 

相关资讯

    联系我们
    电话:027-83893889
     
    手机:15926221333 王经理
     
    电话:027-83893889
     
    传真:027-83386079
     
    Q Q:7748867
     
    邮箱:wwxpp@126.com
     
    工厂地址:武汉市东西湖区吴家山田园大道新城十四路
    Baidu
    map