欢迎来到舜德不锈钢有限公司官方网站!
服务热线:027-83893889

乐竞竞技
微信服务号微信服务号

生产工艺
当前位置:首页 > 新闻资讯 > 生产工艺

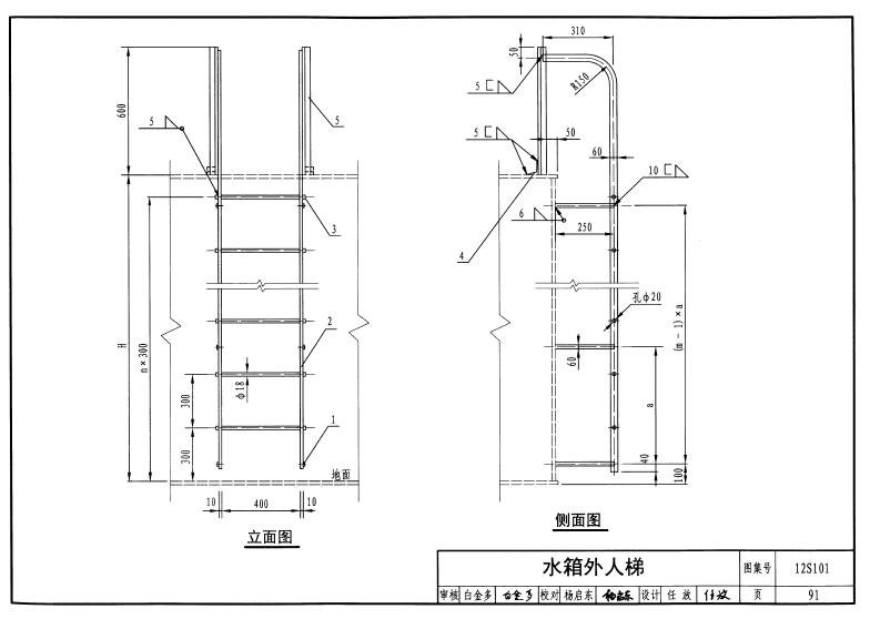
消防水箱内外人梯人孔安装图集
来源:本站   点击:9014   时间:2019-11-10
   

 

12S101 消防水箱图集全册  点击

 

消防水箱内人梯图集:

 

 

 

消防水箱外人梯图集:

 

 

 

消防水箱内人梯材料:

 

 

 

消防水箱人孔图集:

相关资讯

    联系我们
    电话:027-83893889
     
    手机:15926221333 王经理
     
    电话:027-83893889
     
    传真:027-83386079
     
    Q Q:7748867
     
    邮箱:wwxpp@126.com
     
    工厂地址:武汉市东西湖区吴家山田园大道新城十四路
    Baidu
    map