欢迎来到舜德不锈钢有限公司官方网站!
服务热线:027-83893889

乐竞竞技
微信服务号微信服务号

荣誉资质
当前位置:首页 > 乐竞体育客户端 > 荣誉资质

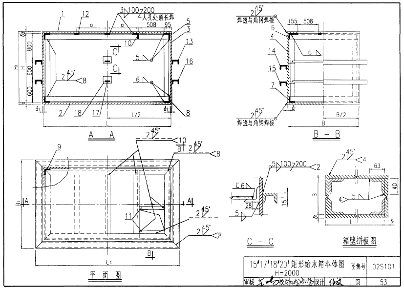
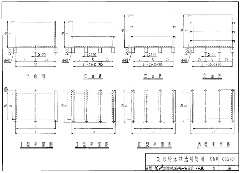
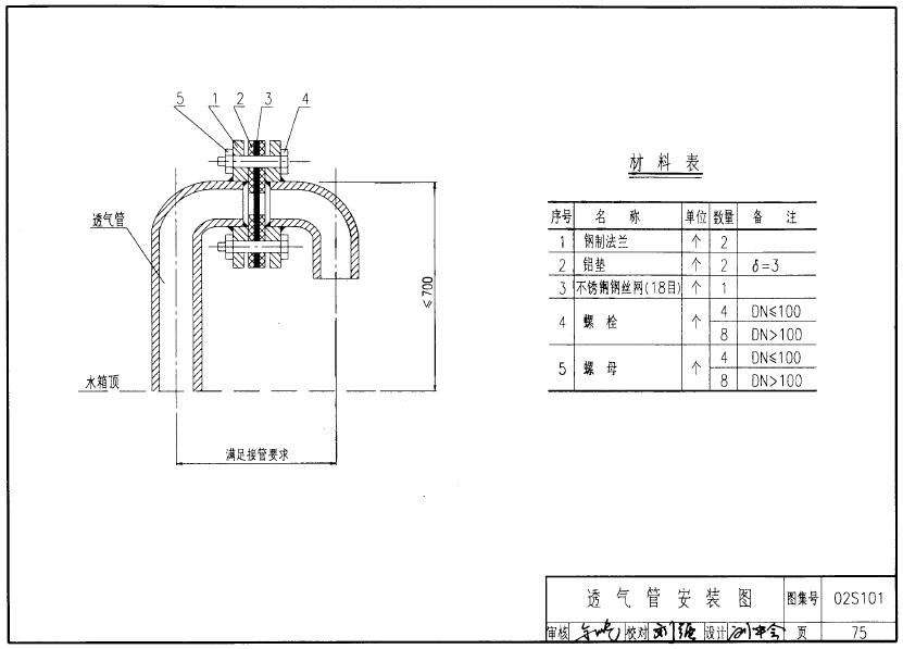
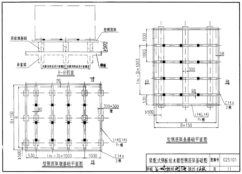
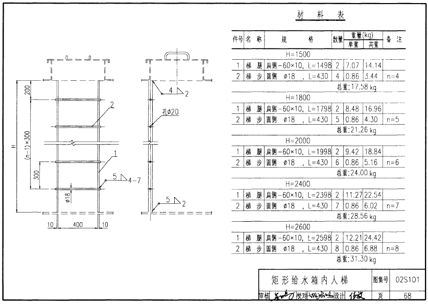
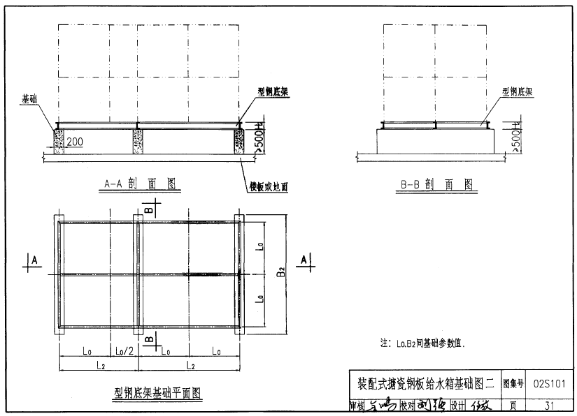
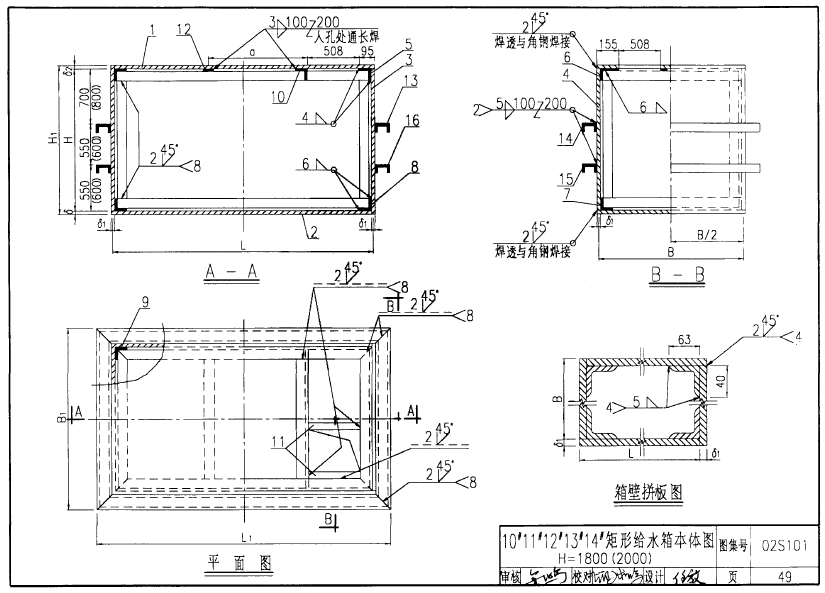
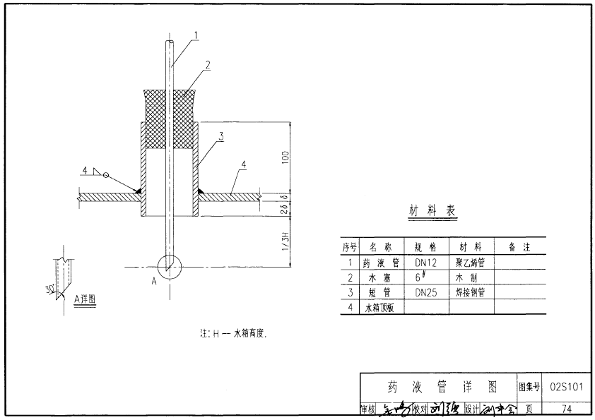
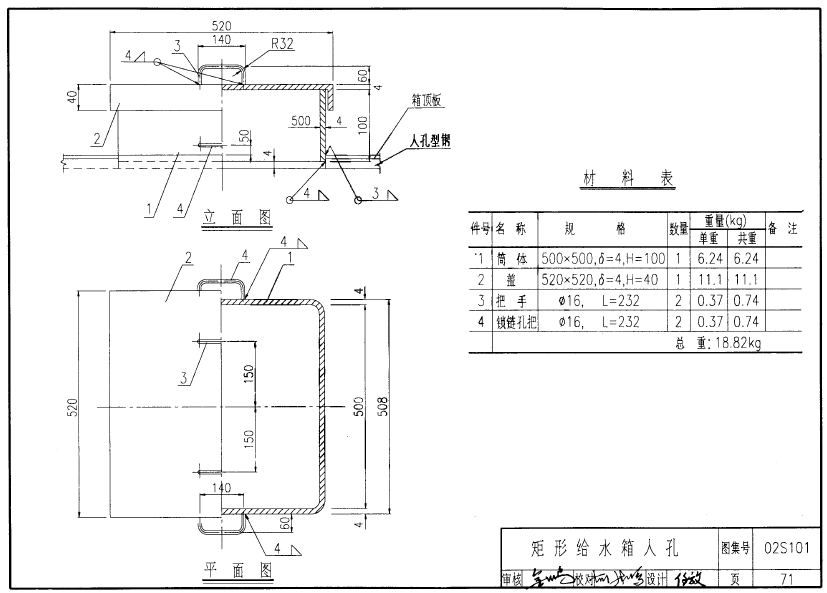
02s101 矩形给水箱图集、消防水箱图集
02s101 矩形给水箱图集、消防水箱图集
乐竞体育客户端 sjysx.com
联系我们
电话:027-83893889
 
手机:15926221333 王经理
 
电话:027-83893889
 
传真:027-83386079
 
Q Q:7748867
 
邮箱:wwxpp@126.com
 
工厂地址:武汉市东西湖区吴家山田园大道新城十四路
Baidu
map